ガーデンコート宝積寺 全3区画 3号地

1,250万円

栃木県塩谷郡高根沢町大字宝積寺

東北本線「宝積寺」駅徒歩11分

烏山線「下野花岡」駅徒歩63分

価格
1,250万円
坪単価
16.9万円(73.96坪)
所在地
栃木県塩谷郡高根沢町大字宝積寺
交通

東北本線宝積寺」駅 徒歩11分

烏山線下野花岡」駅 徒歩63分

土地面積(坪数)
244.52㎡(73.96坪)
建ぺい率 / 容積率
70% / 200%

セールスポイント

【建築条件付き】JR宝積寺駅徒歩11分♪子育て世帯に嬉しい住環境◆全3区画

担当者のコメント

須藤 宏和

□街全体が新しく整う開発許可分譲地
全12区画の新しい街並みです 。幅員6mのゆとりある開発道路が整備され、全区画が整然と並ぶ美しい住環境は、資産価値の維持という面でも長く家族の暮らしを支えます 。

□ハンディホームではコスパ◎の【ぱぱまるハウス】をご提案♪
お家探しのスタートはハンディホームにお任せください^_^

基本情報

販売区画数
3区画
総区画数
3区画
土地面積(坪数)
244.52㎡(73.96坪)
坪単価
16.9万円
私道負担面積
割合
-
セットバック
建ぺい率 /
容積率
70% / 200%
高圧線下面積
-
傾斜地部分面積
-
路地状敷地
-
地目
宅地
地勢
平坦
造成工事
完了予定
-
土地権利
所有権
建築条件
都市計画
市街化区域
用途地域
第一種中高層住居専用
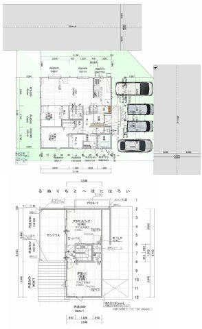
接道状況
角地(北西 公道 6.0m)(西 公道 間口 6.0m)
国土法届出要否
不要
最適用途
住宅用地
その他
法令上の制限
景観法/開発許可番号:栃木県指令都政第74-866-2号(令和7年6月18日)、開発面積:4886.29m2、○開発許可番号:栃木県指令都政第74-866-2号(令和7年6月18日許可)
取引態様
一般媒介
現況
更地
引渡条件
更地渡
引渡時期
相談
開発許可番号
-
取引条件の
有効期限
2026年03月15日

設備条件

設備条件
  • プロパンガス / 公営水道 / 公共下水 / 電気有
設備(その他)
    設備:東京電力、個別プロパンガス、公営水道、汚水:公共下水、雨水:浸透式

その他

物件番号
98406012
管理コード
-
情報更新日
2026年03月01日
次回更新予定日
2026年03月15日
取扱会社
  • ハンディホーム株式会社
  • 栃木県下野市石橋520−1 
  • TEL:0285-38-6661
  • 栃木県知事 (2) 第5155号
  • (公社)全日本不動産協会会員
    (公社)首都圏不動産公正取引協議会加盟
備考
■ハンディグループの強み■
売って終わりではなく、住んでからが本当のお付き合いの始まりです♪
テレビアンテナ、カーテンレール、網戸などなど、住宅購入後に必要となる工事って意外とあります。
他にも自治会加入や翌年の確定申告・・・初めてのマイホームには分からないことが沢山あると思います。
ハンディホームはお客様の満足を叶える◆住まいのトータルサポート企業◆です。
お得にご購入できるサポートはもちろんの事、グループ会社にてリフォーム工事や外構工事も行っております。
分からない事、ご心配な事は全て一緒に行いますのでご安心ください♪

■今すぐご見学×選べるご成約プレゼント■
全てのお客様にご満足して頂けるようハンディホームで御成約頂いたお客様に選べるご成約プレゼントをご準備♪
他社様のご提案にご満足頂けなかった方、一度ハンディホームへお問合せ下さい!
お電話1本で今すぐご見学が可能です。

■住宅ローン承認実績■
1、多債務(オートローン・カードローン・キャッシング)
2、過去住宅ローンが通らなかった
3、勤続年数が短い
4、シングルマザー
5、自営業
※他社様で断られた方もハンディホームへご相談ください!

ガーデンコート宝積寺 全3区画の他の区画

  1. 1号地

    - (244.51㎡)

    1,290万円(17.44万円/坪)

  2. 2号地

    - (244.51㎡)

    1,210万円(16.36万円/坪)

周辺施設

  • 高根沢町立阿久津中学校の画像

    中学校

    高根沢町立阿久津中学校

    436m(6分)

  • ハイタッチパークの画像

    公園

    ハイタッチパーク

    802m(11分)

  • 高根沢町立阿久津小学校の画像

    小学校

    高根沢町立阿久津小学校

    836m(11分)

  • セブンイレブン 高根沢宝積寺店の画像

    コンビニエンスストア

    セブンイレブン 高根沢宝積寺店

    958m(12分)

  • 足利銀行宝積寺支店の画像

    銀行

    足利銀行宝積寺支店

    1069m(14分)

  • ちょっ蔵広場の画像

    公園

    ちょっ蔵広場

    1303m(17分)

  • 中津川循環器科内科クリニックの画像

    総合病院

    中津川循環器科内科クリニック

    1306m(17分)

  • 高根沢町役場 保健センターの画像

    市役所・区役所

    高根沢町役場 保健センター

    1396m(18分)

  • こばと保育園の画像

    保育園

    こばと保育園

    1657m(21分)

支払いシミュレーション

月々の支払額
購入希望物件価格
万円
頭金
万円
金利
%
返済額(ボーナス1回分)
万円
返済期間

※ボーナスは自動で年2回分で計算されます。

よく見られている物件

  1. 下都賀郡壬生町落合2丁目 203.00㎡ 売地

    下都賀郡壬生町落合2丁目

    - (229.31㎡)

    990万円

  2. 鹿沼市千渡 売地

    鹿沼市千渡

    - (192.66㎡)

    8873,000

  3. 下野市石橋 1期 全2区画

    下野市石橋

    - (148.96㎡)

    850万円

  4. 下野市石橋 2期 1区画

    下野市石橋

    - (292.15㎡)

    890万円

ガーデンコート宝積寺 全3区画

ガーデンコート宝積寺 全3区画

1,250万円

-(244.52㎡)

お気軽にお問い合わせください

無料お問い合わせ

ハンディホーム株式会社

0285-38-6661

10:00~20:00

(休:水曜日)